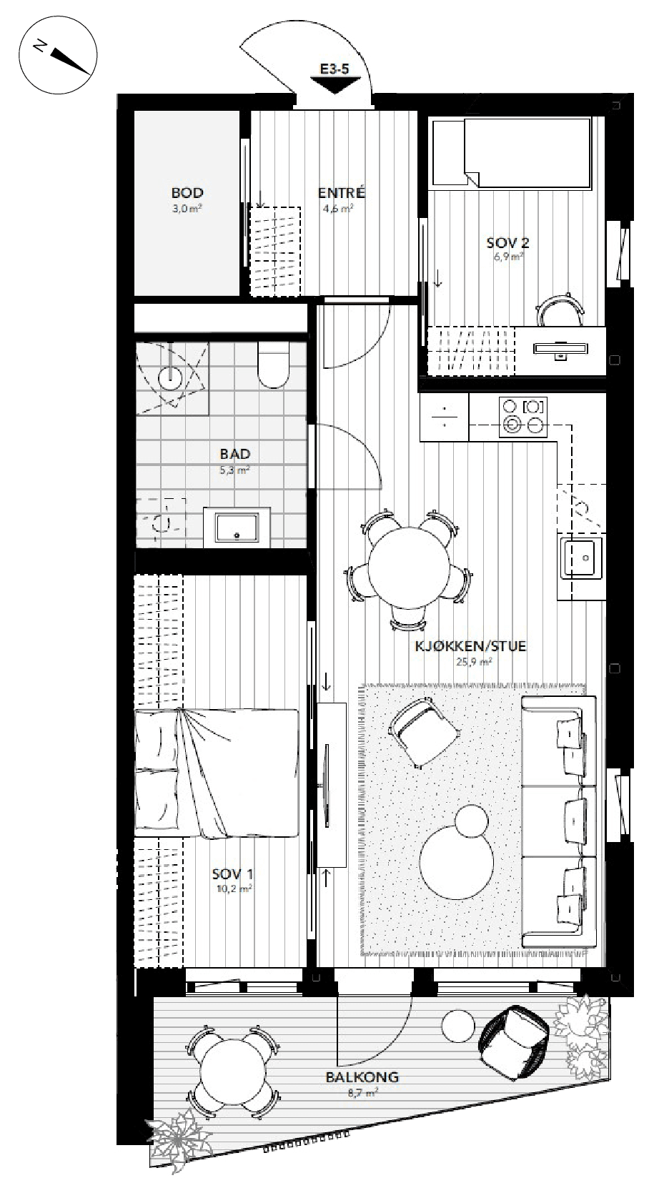
E 3-5
Stor og prisgunstig 3-roms hjørneleilighet med privat balkong mot sør, to soverom og innvendig bod. Stue / kjøkken med vinduer på to sider som sikrer godt med naturlig lysinnslipp. Egen bod i kjeller.
Solgt
Pris
Soverom
2
BRA m²
63
BRA-i
60
Etasje
3
Balkong m²
9
Stipulerte felleskostnader pr. mnd
1 739
Mulighet for kjøp av p-plass?
Ja
