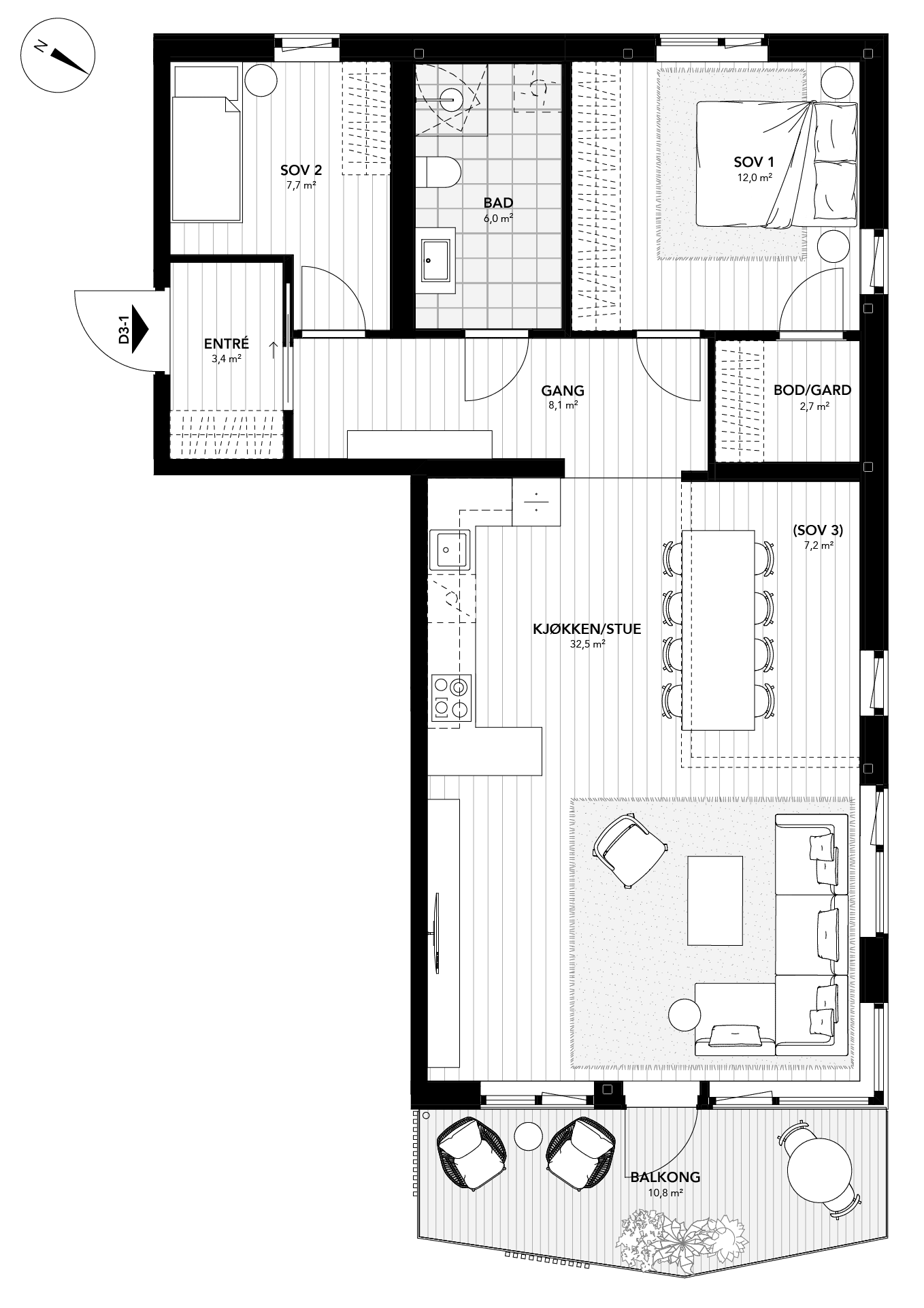
D 3-1
Stor og romslig 3-roms hjørneleilighet som med enkle grep kan bli en 4-roms. Vinduer på to sider i stue / kjøkken som sikrer godt med naturlig lysinnslipp. Romslig balkong på ca. 11 kvm. Praktisk og stor entré/gang. Innvendig bod / garderobe. Egen bod i kjeller.
Pris
5 390 000
Soverom
2
BRA m²
88
BRA-i
85
Etasje
3
Balkong m²
10
Stipulerte felleskostnader pr. mnd
2 065
Mulighet for kjøp av p-plass?
Ja
