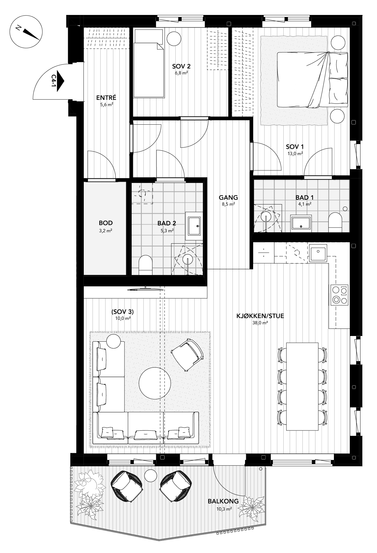
C 4-1
Stor 3-roms hjørneleilighet som med enkle grep kan bli en 4-roms. Stue / kjøkken med vinduer på to sider som sikrer godt med naturlig lysinnslipp. 2 bad, hvor det ene badet er tilknyttet hovedsoverommet. Romslig entré med egen bod i tilknytning. Privat terrasse på over 10 kvm med utsikt mot fjorden. Egen bod i kjeller.
Solgt
Pris
Soverom
2
BRA m²
95
BRA-i
92
Etasje
4
Balkong m²
10
Stipulerte felleskostnader pr. mnd
2 136
Mulighet for kjøp av p-plass?
Ja
