C 1-1
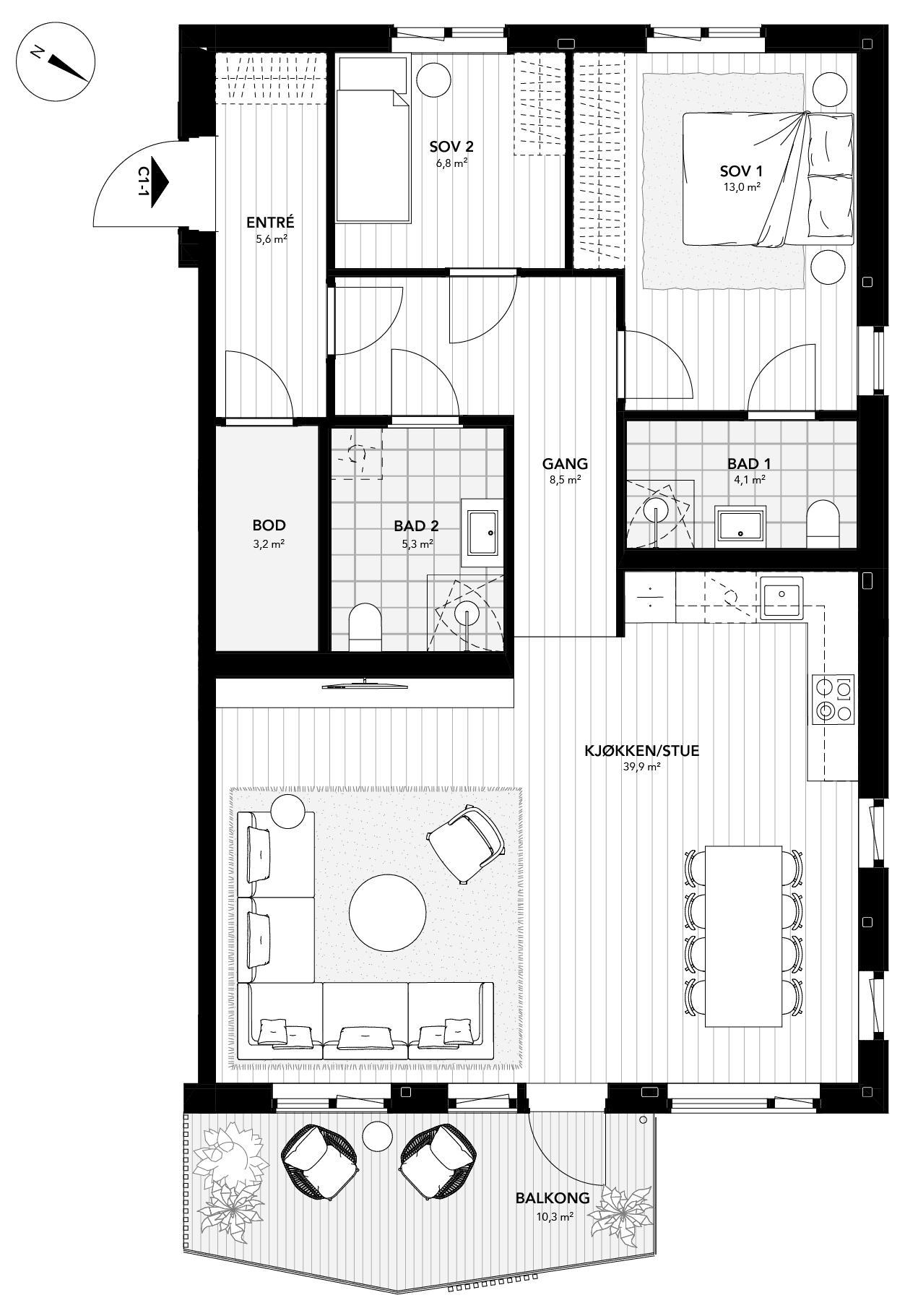
Stor 3-roms hjørneleilighet som med enkle grep kan bli en 4-roms. Stue / kjøkken med vinduer på to sider som sikrer godt med naturlig lysinnslipp. 2 bad, hvor det ene badet er tilknyttet hovedsoverommet. Romslig entré med egen bod i tilknytning. Privat terrasse på over 10 kvm med utsikt mot fjorden. Egen bod i kjeller. Følgende tekst må skrives inn i fritekst-feltet for de 3 boligene: Pris med Bostart er kr. 4 761 000,-. Pris uten Bostart er kr. 5 290 000,-.
Solgt
Pris
Pris med BoStart
4 761 000
Soverom
2
BRA m²
95
Etasje
1
Balkong m²
10
Stipulerte felleskostnader pr. mnd
2 136
Mulighet for kjøp av p-plass?
Ja
